Welkom in deze instapklare, uitgebouwde en Energielabel A hoekwoning (611m3) uit 2007 in de geliefde wijk Schollenkamp!
De woning staat nog niet op Funda, wilt u graag de woning in het echt bekijken dan kun u contact met ons opnemen voor het maken van een afspraak.
De Tedinkweide wordt gekenmerkt door de sterke jaren ’30-bouwstijl die terugkomt in de ontwerpen van de huizen. In combinatie met het royale openbare groen voor de deur en de speelveldjes voor de kinderen, is dit bij uitstek een wijk voor gezinnen. Borculo is een Achterhoeks stadje tussen Lochem, Zutphen, Doetinchem en Winterswijk. Het landschap laat zich kenmerken door de bossen, houtwallen en weidegronden die samen het coulisseland maken. Alle faciliteiten zoals winkels, basis- en middelbare scholen, musea, etc., zijn hier aanwezig en ook uitvalswegen zijn vlakbij.
Deze prachtige en zeer ruime woning is gebouwd in 2007 en staat op een perceel van 263 m². De oprit biedt plaats aan 2 auto’s en de (voormalige) garage is nu in gebruik als berging en bijkeuken waardoor het realiseren van een praktijk aan huis of levensloopbestendig wonen tot de mogelijkheden behoort.
Indeling

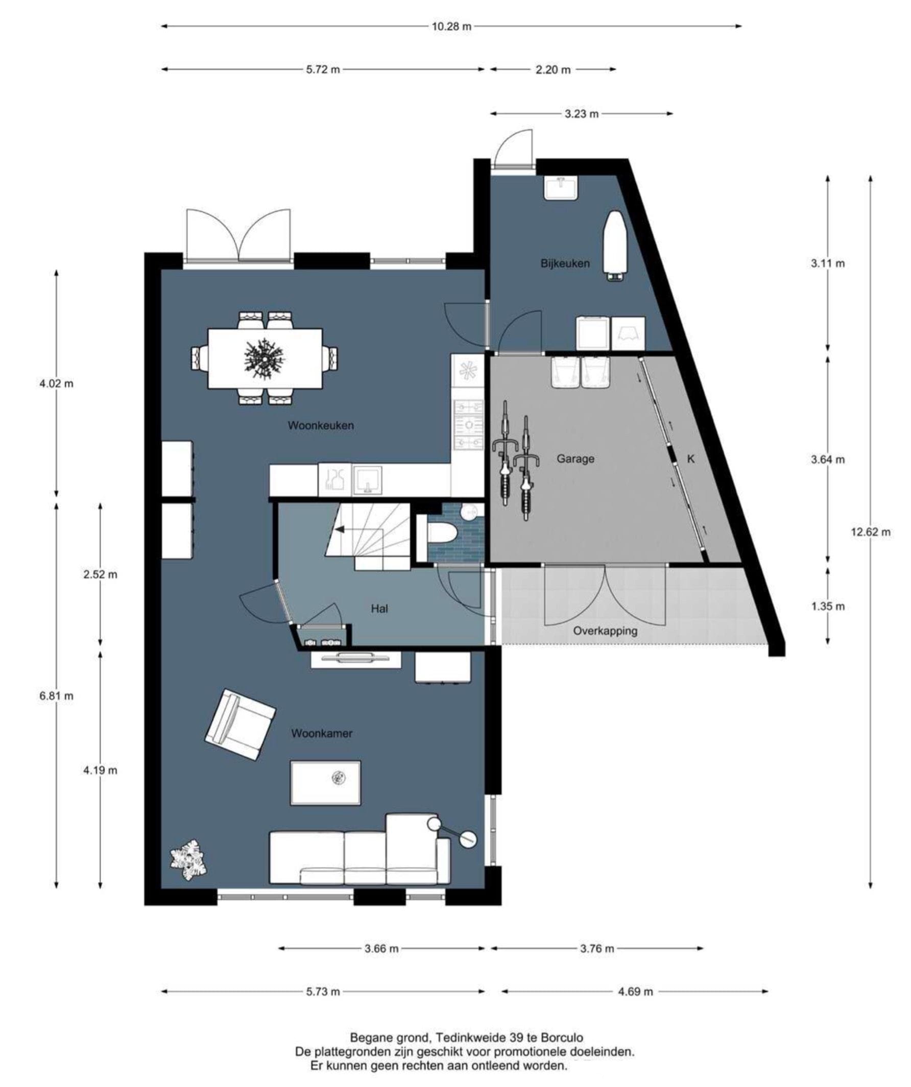
Begane grond:
Met een riante leefruimte op de begane grond van 70m² waaronder een grote luxe woonkeuken (23m²) met vloerverwarming en openslaande deuren naar de tuin, ruime woonkamer met veel raampartijen, bijkeuken en berging.

1e Verdieping:
Op de 1e verdieping 3 slaapkamers, een luxe badkamer voorzien van vloerverwarming met ligbad, inloopdouche, 2e toilet en wastafelmeubel.

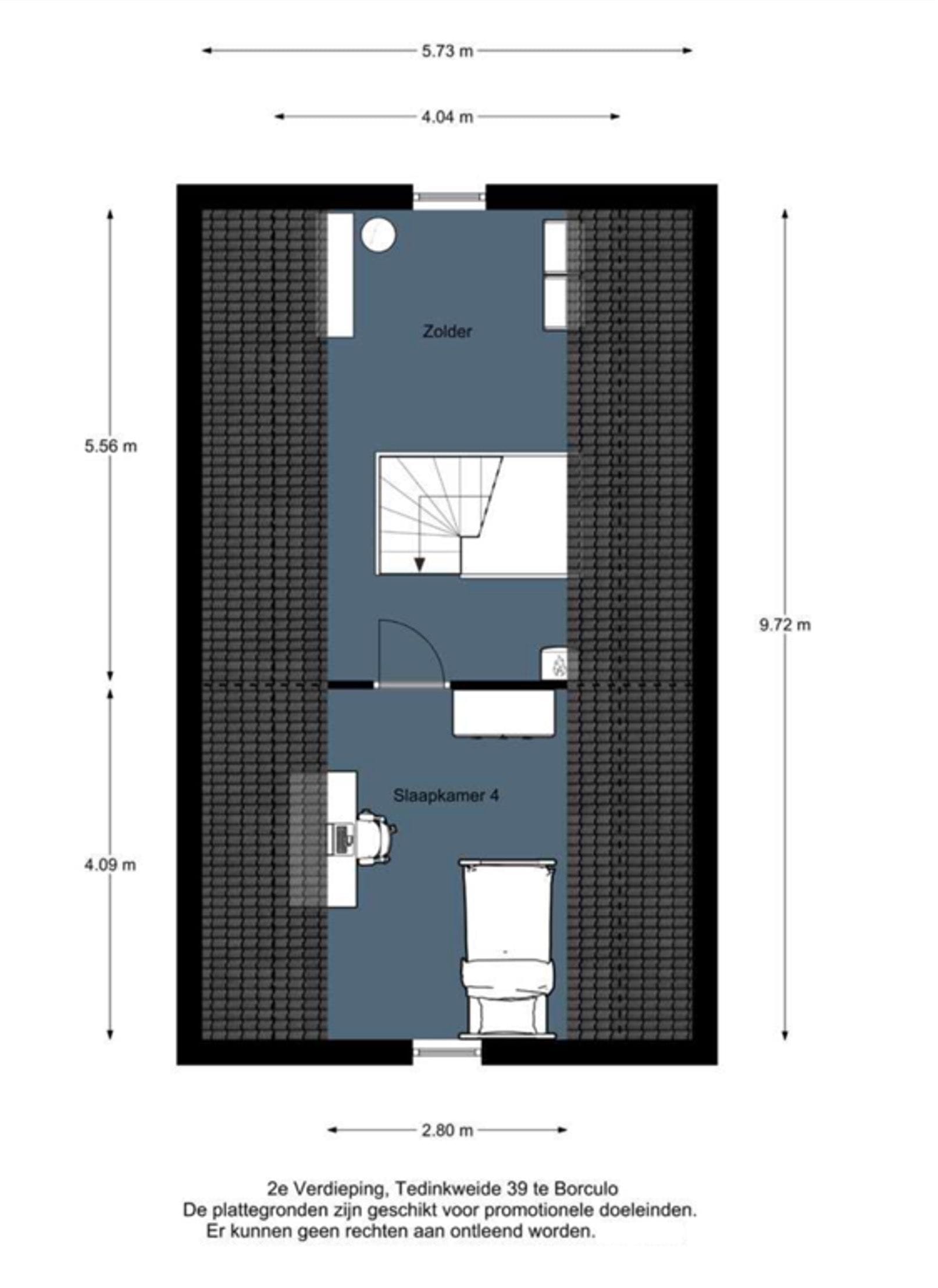
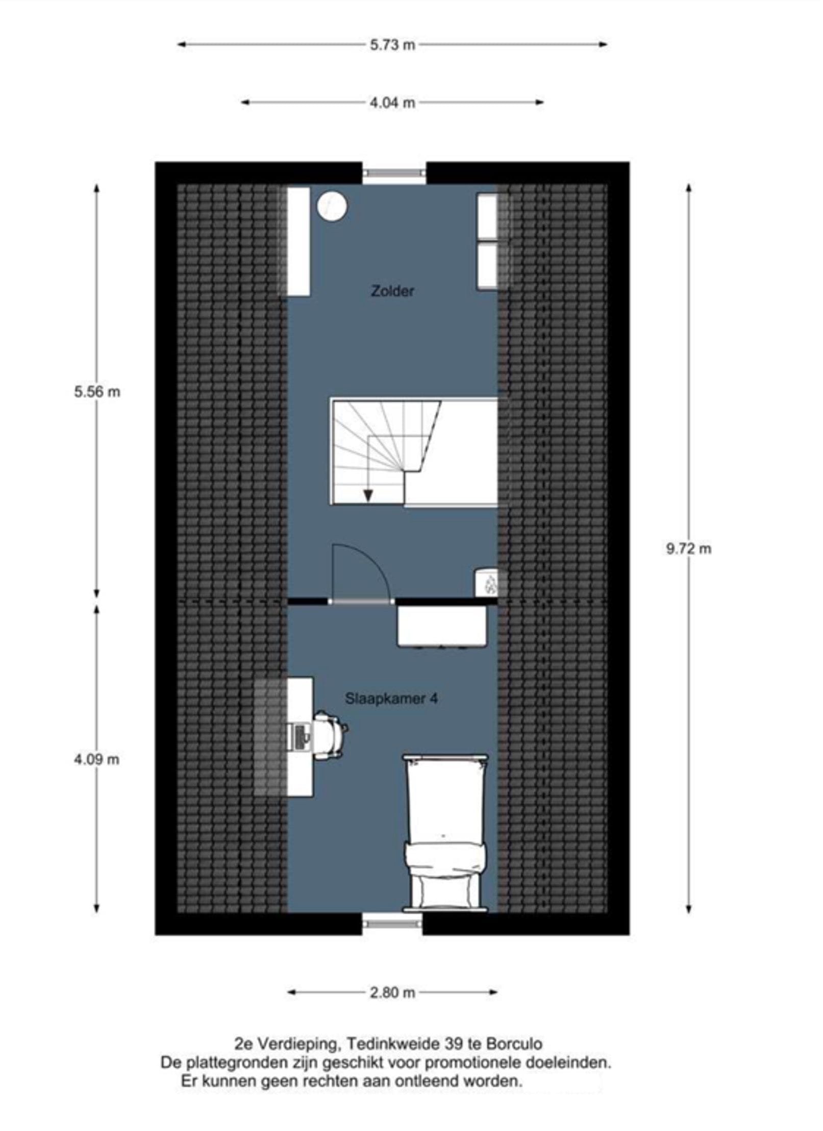
2e Verdieping:
Via de vaste trap naar de riante 2e verdieping met de 4e slaapkamer en mogelijkheid voor het realiseren van een 5e slaapkamer en over de gehele lengte van de woning opbergschotten.
Kernpunten:
Woonoppervlakte. : ca. 154 m²
Perceeloppervlakte : ca. 263 m²
Slaapkamers : 4 met mogelijkheid tot 5
Energielabel : A
Parkeren : Eigen oprit met capaciteit voor 2 auto’s
Bouwstijl : Jaren ‘30
Isolatie : Volledig geïsoleerd
Verwarming : CV-ketel (Vaillant, 2007) en gedeeltelijk vloerverwarming (keuken en badkamer)
In de koopakte wordt in ieder geval opgenomen:
- Een bankgarantie/waarborgsom van 10% van de koopsom.




