Riante vrijstaande woning met ecologische tuin!
Deze stijlvolle, onder architectuur gebouwde vrijstaande villa valt op vanwege de glazen pui, opgebouwd met glasstenen- aan de voorzijde en strakke voortuin. Deze sfeervolle woning is door de jaren heen altijd goed onderhouden.
Een fraaie woonkamer met open keuken met inbouwapparatuur zal de kookliefhebber ongetwijfeld direct aanspreken. Op de begane grond ligt voor een deel een parketvloer (gelakt 2019); in de keuken en de hal liggen plavuizen.
Er zijn 3 royale slaapkamers met een zeer compleet uitgevoerde badkamer. Het huis heeft ook 3 toiletruimtes. De grote slaapkamer op de 2e verdieping geeft toegang tot het dakterras. Hier bevindt zich ook een aparte wasruimte met toilet en CV-ruimte.
De eveneens onder architectuur aangelegde ecologisch achtertuin heeft een uitstekende zonligging met een groot terras op het zuidoosten. De eigen oprit en dubbele berging/ garage maken deze woning meer dan compleet en geschikt voor een gezin.
De woning is gelegen aan een rustig, ruim opgezet en kindvriendelijk plein midden in de wijk ‘De Enk’ op een klein kwartiertje fietsen van de binnenstad. De woning is goed bereikbaar vanaf de openbare weg en er zijn ook voldoende parkeervoorzieningen in de nabije omgeving en op eigen terrein aanwezig.
Alle faciliteiten zoals winkels, basis- en middelbare scholen, musea, etc., zijn hier aanwezig en ook uitvalswegen zijn vlakbij. Het openbaar vervoer en het groene buitengebied van Zutphen zijn binnen handbereik. Via de N314 zijn aansluitende uitvalswegen richting de omliggende steden en dorpen zeer goed bereikbaar.
Indeling

Begane grond:
Via de hal, waar ook de meterkast en een grote voorraadkast zich bevinden betreedt u de ruime L-vormige woonkamer met veel lichtinval.
In de hal is ook een deur die toegang geeft tot de bijkeuken. Vanuit de bijkeuken is er een deur die toegang geeft tot de geïsoleerde garage met openslaande garagedeuren. De toiletruimte is ingedeeld met een wandcloset en een fonteintje.
De benedenverdieping heeft 3 schuifpuien, waarvan 1 een dubbele zodat je in de ruime, onder architectuur aangelegde bloementuin met vijver komt.
Veel lichtinval geeft de woonkamer sfeer, mede door de aanwezigheid van een gashaard. Er is meer dan genoeg ruimte voor een grote zithoek en een eetgedeelte waar je met familie of vrienden heerlijk kunt tafelen. In de hoek van de kamer is een deur naar het terras. Aan de voorzijde is de open keuken met een kookeiland, voorzien van een composiet blad en een betegelde achterwand. Alle benodigde apparatuur is ingebouwd: een 5-pits keramische kookplaat, afzuigkap, vaatwasser, koel-/vriescombinatie en een grote combi-oven/magnetron. Vanuit de keuken is er toegang tot het trappenhuis. Het trappenhuis is over de volle breedte van de woning gesitueerd.

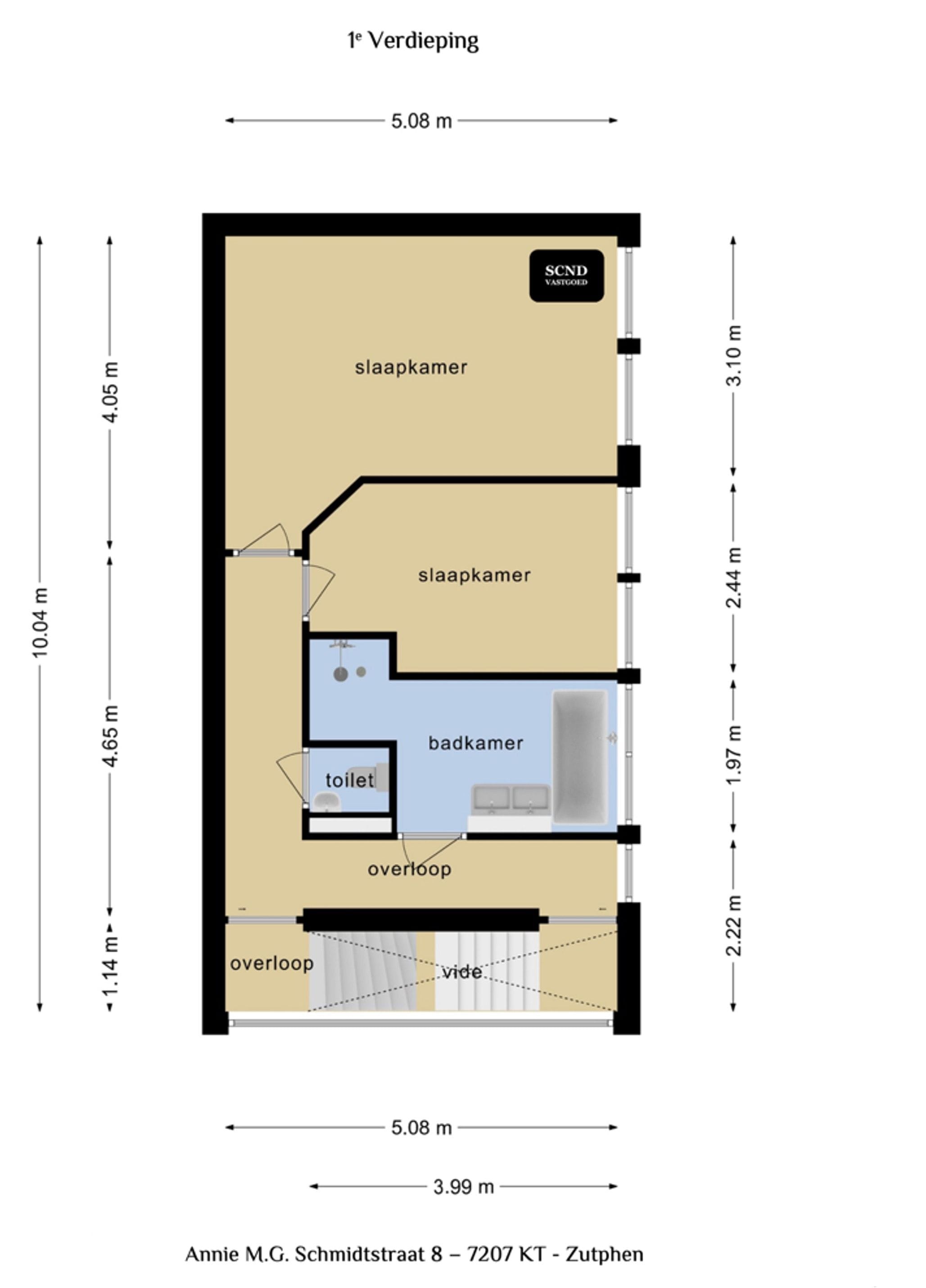
Eerste verdieping:
Via een stalen trap kom je op de eerste verdieping. Vanaf de overloop, die uit twee gangen bestaat, zijn twee slaapkamers, de badkamer en separate toiletruimte te bereiken. De badkamer heeft grote ramen en een heel ruimtelijke indeling met onder andere een duo-ligbad, grote inloopdouche met glazen deur en een badkamermeubel met dubbele wasbak, design kranen en daarboven een dubbele spiegelkast.

Tweede verdieping:
Ook weer via de stalen trap bereik je de tweede verdieping met een royale en lichte slaapkamer met inloopkast. Er is een tweede badkamer voorzien van toilet en wastafel met fontein. Vanuit de badkamer krijg je toegang tot eveneens een bergruimte met omvormer, boiler, mechanische afzuiging, WTW-unit en een CV-opstelplaats. De slaapkamer heeft over de volle breedte van de woning een overdekt balkon.
Exterieur: De woning staat op een perceel van 456 m2 waarbij de achtertuin op het zuidoosten gesitueerd is. Dankzij de groene beukenhaag en klimop is het een fijne zonnige tuin, met verschillende terrassen en veel privacy. Op de oprit is parkeergelegenheid voor 2 auto’s. De onder architectuur aangelegde ecologische bloementuin met vijver, tuinhuis en gevarieerde beplanting zorgen voor een tuin met uitstraling.
Bijzonderheden:
- De woning is voorzien van dak-, gevel- en vloerisolatie;
- De pvc-dakbedekking (kleur wit) is in mei 2018 gelegd;
- In september 2019 zijn 10 zonnepanelen geplaatst met een oppervlakte van 16 m2;
- Het schilderwerk binnen is gedaan in 2018;
- Houten kozijnen, voorzien van isolerende beglazing;
- Beneden verdieping heeft 3 schuifpuien met aluminium kozijnen met dubbelglas en zijn allen voorzien van schuifdeurhorren;
- Het buitenschilderwerk is in het voorjaar van 2019 gedaan;
- De gevel is in juli 2021 gereinigd en opnieuw geschilderd;
- In augustus 2021 zijn er nieuwe zwarte dakkappen geplaatst;
- Verwarming en warm water via een HR-ketel (Nefit Ecoline, december 2005) en een 80 liter boiler;
- Energielabel A.
In de koopakte wordt in ieder geval opgenomen:
- Een bankgarantie/waarborgsom van 10% van de koopsom.




